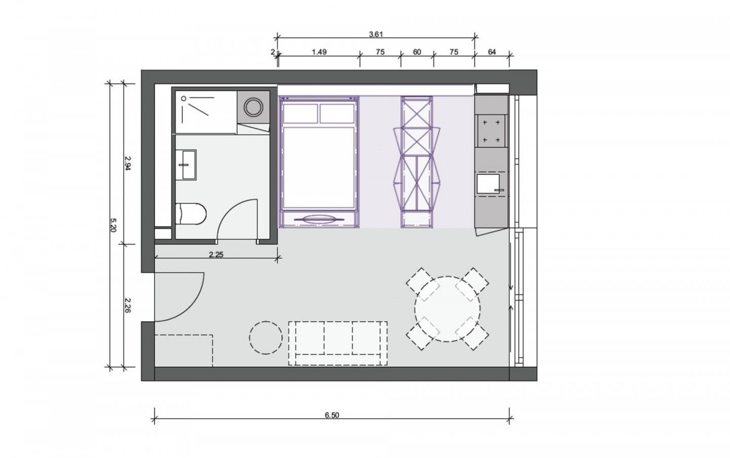
Studio-Renovation zum Fixpreis
Folgende Leistungen sind im Fixpreis enthalten:
Küche
- Concept T30 Küche, Farbe Weiss
- Amaturen Franke
- Siemens iQ500, Einbau-Herd, 60×60 cm, Edelstahl, Energieeffizienzklasse A
- Siemens iQ300, Elektrokochfeld, 60 cm, herdgebunden
- Siemens iQ100, vollintegrierter Geschirrspüler, 45 cm, Energieeffizienzklasse E
- Siemens iQ500, Unterbau-Kühlschrank mit Gefrierfach, 82 x 60 cm, Flachscharnier mit Softeinzug, Energieeffizienzklasse D
- Siemens iQ300, Flachschirmhaube, 60 cm, Silbermetallic, Energieeffizienzklasse A
Bad
- WC Laufen
- Badmöbel
- Duschbrause
- Waschgarnitur
- WC-Toilettenpapierhalter
Keramik Bad
- QUINCY 60/60/10
Malerarbeiten
- Farbe Kabe Weiss RAL 9010/NCS0500N
Boden
- Maloia Landhaus, gebürstet und geölt
- Bodenblenden Weiss
Demontage inkl. Entsorgung und Endreinigung
Elektriker und Sanitär arbeiten inklusive
Abgebildete Aktion Basis 34m2
